汇集名师与新作

注册
画年代设计丨何须浅碧轻红色,自是花中第一流
山芋1215  / 发表于 2019-9-8 15:21:50 |设计大本营[开放]  / 家装设计
设计单位:苏州画年代设计
设 计 师:山芋

我喜欢铅笔画的线条的极简,我也喜欢油画的浓墨重彩。
一冷一热的色彩,一刚一柔的材质,相互交融,点缀金色的小部件,光影交错。
顶层的特殊户型,四面采光的极佳条件,阳光洋洋洒洒而下,唤醒你的,永远是美好的新的一天。



画年代设计 (5).jpg


画年代设计 (7).jpg



午后
坐在洒满阳光的阳台上
晒干的衣服还没有收
水壶在炉子上发出的欢鸣
让整个下午变得生机盎然
那些美好的小琐事
将在这里发生


画年代设计 (1).jpg


画年代设计 (4).jpg


画年代设计 (6).jpg


画年代设计 (2).jpg


画年代设计 (8).jpg


画年代设计 (9).jpg


画年代设计 (10).jpg


画年代设计 (11).jpg


画年代设计 (14).jpg


画年代设计 (12).jpg


画年代设计 (15).jpg


画年代设计 (16).jpg


画年代设计 (17).jpg


微信图片_20190902111545.jpg


微信图片_20190902111558.jpg


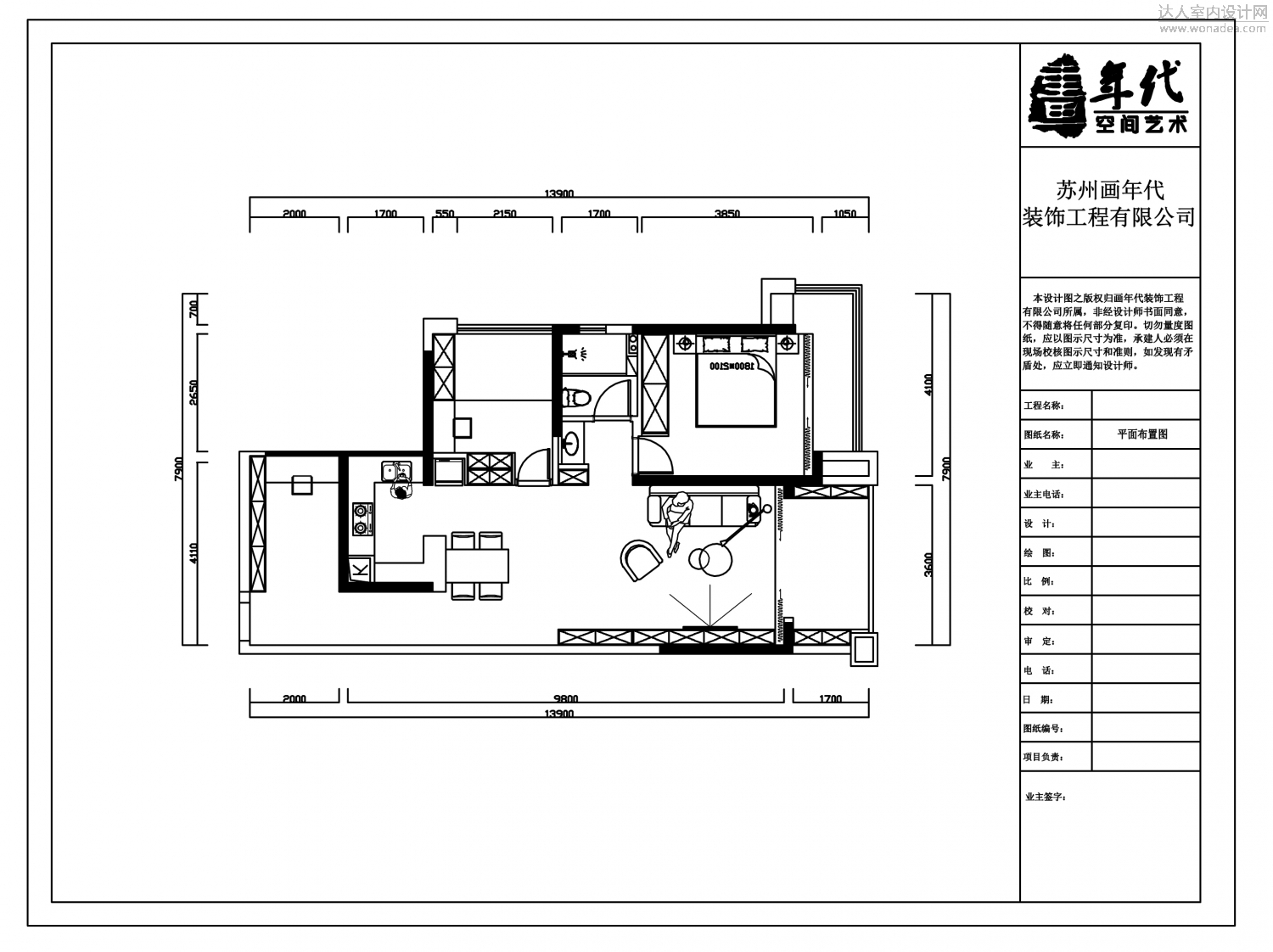
充足的储物空间,在大部分现代人的生活中,是一个必备需求。这个户型,业主吐槽最多的就是卫生间太小,淋浴房太小。而且也没有多余的储物空间。
于是,超级变变变又来了。
厨房间做开放式,连通餐厅,不仅多了一块操作台面让操作更加便捷,也腾出了过道的空间,生活的动线清晰且宽敞。改变东次卧门的位置,将足够的空间给了卫生间做干湿分区,大大的盥洗柜,宽宽的淋浴房。
但是问题又来了,她烦恼着,那么多柜子不知道该放些什么。




每一套房屋的装修都是装易换难,几乎每套装修都会伴随她的住户八年…十年…甚至更为久远,陪她的住户走过最珍贵的青春年代!我们的理念就是“用心的绘画和勾勒出属于不同住户独一无二的年代空间”!

                                                                                                                                                                            ——画年代 • MK


各位优秀的应届毕业生你们有机会咯,画年代设计近期开始招聘设计助理,有意向的朋友可以加微信联系:15151500307(同微信号)。备注“应聘”
岗位职责:
1、配合首席设计师,完成方案的优化;
2、以团队合作为中心,配合完成相关工作;
任职要求:
1、熟练掌握cad等软件,能完成相关的平面方案;
2、能配合量房,并在量房后,画出正确的平面图;
3、公司以全案设计为主,在注重前期硬装的同时,跟进后期软装的搭配;
4、公司又有理想的年轻人提供平台,能更好的将理论与实践相结合。


0

主题

178

帖子

333

积分

3级会员

Rank: 3Rank: 3

积分
333
王墨 发表于 2019-9-8 17:17:43 | 显示全部楼层
支持达人室内设计网

0

主题

260

帖子

2362

积分

8级会员

Rank: 8Rank: 8

积分
2362
梦游饱饱 发表于 2019-9-9 09:17:53 | 显示全部楼层

支持达人设计

0

主题

8

帖子

228

积分

3级会员

Rank: 3Rank: 3

积分
228
小白菜呀菜 发表于 2019-9-9 09:26:13 | 显示全部楼层
支持达人室内设计网

0

主题

178

帖子

333

积分

3级会员

Rank: 3Rank: 3

积分
333
王墨 发表于 2019-9-10 08:56:50 | 显示全部楼层

支持室内达人设计

0

主题

609

帖子

2507

积分

8级会员

Rank: 8Rank: 8

积分
2507
王佳钰 发表于 2020-7-28 08:45:30 | 显示全部楼层


支持达人室内设计网

0

主题

1392

帖子

3629

积分

8级会员

Rank: 8Rank: 8

积分
3629

Medal No.1优秀达人Medal No.2活力达人Medal No.3忠实达人Medal No.4先锋达人Medal No.5发烧达人Medal No.6天使达人Medal No.7达人代言人Medal No.8达人推广大使

RAQ 发表于 2021-8-1 14:58:34 | 显示全部楼层
支持达人室内设计网

0

主题

1392

帖子

3629

积分

8级会员

Rank: 8Rank: 8

积分
3629

Medal No.1优秀达人Medal No.2活力达人Medal No.3忠实达人Medal No.4先锋达人Medal No.5发烧达人Medal No.6天使达人Medal No.7达人代言人Medal No.8达人推广大使

RAQ 发表于 2021-8-22 15:19:52 | 显示全部楼层
感谢分享,支持达人室内设计网

0

主题

944

帖子

3547

积分

8级会员

Rank: 8Rank: 8

积分
3547

Medal No.1优秀达人Medal No.2活力达人Medal No.3忠实达人Medal No.4先锋达人Medal No.5发烧达人Medal No.6天使达人Medal No.7达人代言人Medal No.8达人推广大使

设计师多好 发表于 2021-8-28 09:31:45 | 显示全部楼层
支持达人室内设计网

3

主题

540

帖子

2595

积分

8级会员

Rank: 8Rank: 8

积分
2595
Yank 发表于 2022-5-17 10:31:04 | 显示全部楼层
支持达人室内设计网
您需要登录后才可以回帖 登录 | 注册

本版积分规则

关闭

站长推荐上一条 /1 下一条

收藏帖子 返回列表

QQ|Archiver|手机版|小黑屋|达人室内设计网 ( 粤ICP备12090048号-1 公安备案 )

GMT+8, 2025-10-24 09:30 , Processed in 0.173908 second(s), 46 queries .

Powered by Wonadea

返回顶部