汇集名师与新作

注册
城市酒馆·酿造现场
有劃設商业设计  / 发表于 2020-7-3 17:02:51 |设计大本营  / 公装设计

项目名称:酿造现场·现酿啤酒馆
完成时间:2017年10月
项目地点:无锡运河外滩一号楼1F
项目面积:115平方米
设计公司:有劃設商业设计


◢ 项目外观


酿造现场是一家现酿啤酒馆,项目外立面采用了整块的落地玻璃,让室内环境与室外的红砖相呼应,形成一种粗砺而温暖的氛围,内外环境的交融既弱化边界又展现一种迎接的姿态,而室内的线形灯带也将店内的景象和灯光投射进城市,将放松休闲的夜生活向城市铺展开。

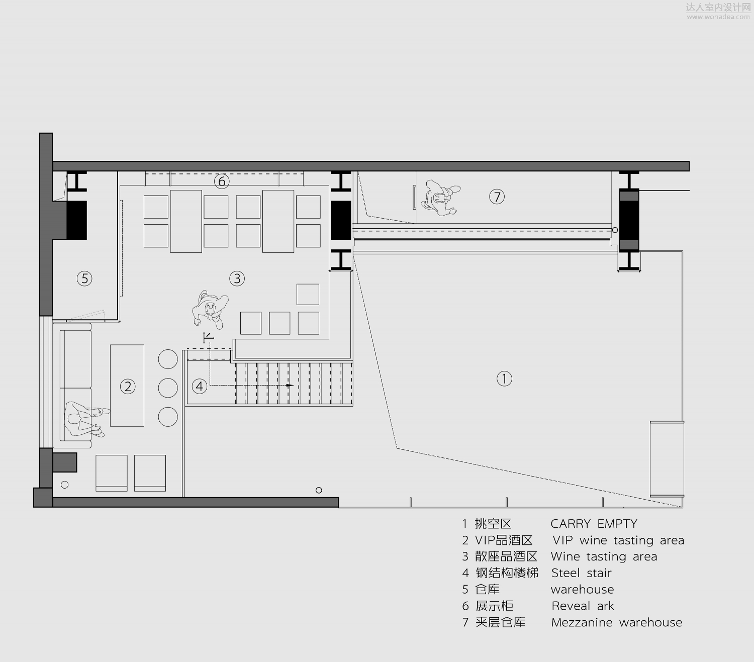
◢ 一层平面


◢ 二层平面


◢ 室内剖面图


◢ 空间剖析


在空间的营造上,我们将区域做了明确的划分,从酒吧的功能分区到动线规划,不仅为业主提供了充足的料理空间,也为顾客品酒、畅谈提供了一个新颖舒适的环境。
瓦楞玻璃、绿植、灯光相交织形成的光影,营造出惬意的品酒氛围。


在素材的选择上,我们将酿造啤酒的主体——酒罐,作为素材和视觉中心点,让其既具有功能性,又具有审美趣味,而铜管作为在空间上延伸的载体,展现了现酿啤酒的技术性,也勾起了顾客对啤酒文化的好奇心,吸引人们的目光,产生话题,形成聚集中心。


◢ 卡座区域


◢ 入口区域


◢ 吧台区域


酒可以是故事的开始,而此间经过,全在于来人为谁。酿造现场,有我们与有趣的老板一起,等待着那些用时间为现场谱写故事的人。


本帖子中包含更多资源

您需要 登录 才可以下载或查看,没有帐号?注册

x

0

主题

466

帖子

1446

积分

7级会员

Rank: 7Rank: 7Rank: 7

积分
1446
lanzhongjie 发表于 2022-6-1 10:14:47 | 显示全部楼层
支持达人室内设计网

0

主题

466

帖子

1446

积分

7级会员

Rank: 7Rank: 7Rank: 7

积分
1446
lanzhongjie 发表于 2022-6-2 15:26:19 | 显示全部楼层
支持达人室内设计网
您需要登录后才可以回帖 登录 | 注册

本版积分规则

关闭

站长推荐上一条 /1 下一条

收藏帖子 返回列表

QQ|Archiver|手机版|小黑屋|达人室内设计网 ( 粤ICP备12090048号-1 公安备案 )

GMT+8, 2025-11-8 00:40 , Processed in 0.139208 second(s), 36 queries .

Powered by Wonadea

返回顶部