汇集名师与新作

注册
佰壹营造丨 达芬奇密码
佰壹营造  / 发表于 2020-11-26 15:20:49 |设计大本营  / 家装设计

一屋  两人  三餐  四季
生活不需要太精彩  恬淡温馨足以
当梦想照进现实
所有的酸苦都渐变成甜
   


项目地址丨 镇江·远洋香奈城

项目面积丨 190平米

项目风格丨 混搭

设计单位丨佰壹营造



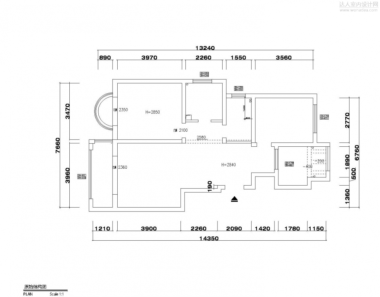
— 平面布置图 —



— 玄关 —


— 入户书房 —


— 客厅 —



— 餐厅、厨房 —


— 干区 —


— 主卧 —


— 卫生间 —


— 次卧 —


— 活动室 —


— 书房 —


— 榻榻米空间 —



本帖子中包含更多资源

您需要 登录 才可以下载或查看,没有帐号?注册

x

0

主题

345

帖子

2656

积分

8级会员

Rank: 8Rank: 8

积分
2656
设计师丶向国 发表于 2020-11-27 00:35:42 | 显示全部楼层
感谢分享

3

主题

572

帖子

2577

积分

8级会员

Rank: 8Rank: 8

积分
2577
祖传效果图 发表于 2020-11-29 08:31:25 | 显示全部楼层


感谢分享,支持室内达人网
您需要登录后才可以回帖 登录 | 注册

本版积分规则

关闭

站长推荐上一条 /1 下一条

收藏帖子 返回列表

QQ|Archiver|手机版|小黑屋|达人室内设计网 ( 粤ICP备12090048号-1 公安备案 )

GMT+8, 2025-11-1 17:27 , Processed in 0.140106 second(s), 37 queries .

Powered by Wonadea

返回顶部