汇集名师与新作

注册
医疗器械办公室
sunyin  / 发表于 2021-10-26 17:04:19 |设计大本营  / 公装设计

sunyin

6级会员

私信回帖


药都医疗器械办公室

面 积:342m2
地 址:药 都 南 大 道
类 型:办 公 空 间
设 计:孙 引
摄 影:邓 金 泉

项 目 概 况


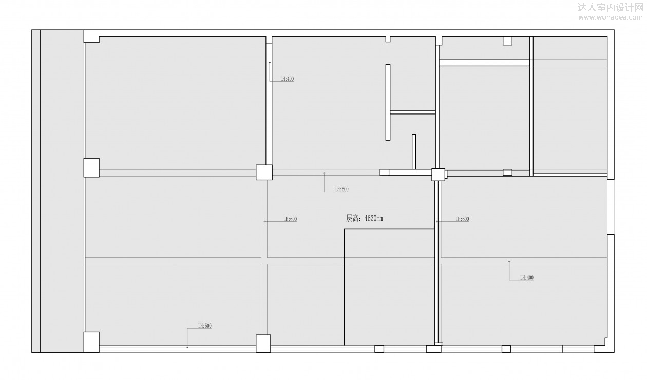
原始平面图

丨户型分析丨

原始层高4.63米
顶上梁高600mm
为了适应公司组织架构的发展,一层已经完全不能满足使用需求
上下两层空间又难以保证层高是舒适性
在不破坏地梁结构的同时,下挖空间也非常有限

1F平面布置图
2F平面布置图

丨户型调整丨
为了保证层高是舒适性,下挖了一部分空间,
二楼空间通过格局的优化最大限度的避开所有比较高的梁体
另一部分梁体,通过空间造型,弱化梁体带来的压抑感

实 景 照 片


线与面的结合,虚实之间交叠呼应。
前台正面整块的石材,遮挡电脑旁边凌乱的文件,使得整个空间更简洁。
大堂空间兼具产品陈列


有别于传统办公空间的黑白配色,墙面的色彩划破沉闷的空间,
让空间的情绪与人连接,在办公空间中注入年轻的活力

封闭的柜体设计,可以有效的遮挡杂乱的文件,
干净利落的办公空间,让人更专注,
部分开放柜,方便拿取平时常用文件,
让办公更高效。


每个空间都在讲述不同的故事,将人与空间的情感融合,
同时又有一种东方的清雅格调,在这里,社交、品茗。

座椅靠背通过弧形延伸至吊顶,有效避免座位正上方梁体带来的的压抑感
大块落地玻璃窗将自然之气丰盈内部,光与空间交互而行。

这个空间最大的挑战在于要平衡上下两个空间的层高,在有限的层高里,最大化的利用到全部的空间。
有别于传统思考下的办公空间,我们更在意如何让里面的人多被激发活力,享受更多工作的乐趣。
公司成员可以在此进行不一样的沟通讨论工作,其目的为了能创建一个能使人真正放松身心,自由工作的办公空间。
一个有能力吸收办公行为中,各种变化需求并灵活做出调整的生动多样的空间氛围,有弹性,自发应用,具备延展性与适应力。





本帖子中包含更多资源

您需要 登录 才可以下载或查看,没有帐号?注册

x

0

主题

1025

帖子

2028

积分

8级会员

Rank: 8Rank: 8

积分
2028
13683854577 发表于 2023-5-30 15:56:27 | 显示全部楼层
支持达人室内设计网
您需要登录后才可以回帖 登录 | 注册

本版积分规则

关闭

站长推荐上一条 /1 下一条

收藏帖子 返回列表

QQ|Archiver|手机版|小黑屋|达人室内设计网 ( 粤ICP备12090048号-1 公安备案 )

GMT+8, 2025-11-1 06:59 , Processed in 0.129844 second(s), 34 queries .

Powered by Wonadea

返回顶部