汇集名师与新作

注册
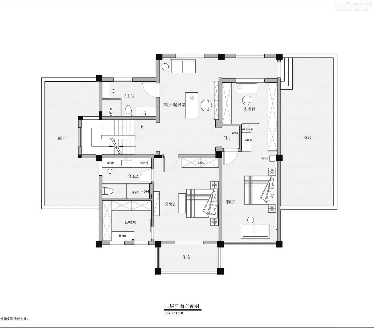
安徽·自建住宅楼
YSD研舍设计  / 发表于 2025-6-13 15:23:32 |设计大本营  / 家装设计
项目名称:安徽·自建住宅楼

项目地址:中国 安徽

建筑面积:350平米
设计机构:研舍设计
设计团队:熊 辉 姜楠 王达乾

项目材料:大理石 金属 木饰面 等

本帖子中包含更多资源

您需要 登录 才可以下载或查看,没有帐号?注册

x

0

主题

812

帖子

2089

积分

8级会员

Rank: 8Rank: 8

积分
2089

Medal No.1优秀达人Medal No.2活力达人Medal No.3忠实达人Medal No.4先锋达人Medal No.5发烧达人Medal No.6天使达人Medal No.7达人代言人

CoLin__X 发表于 2025-6-17 12:22:24 | 显示全部楼层


支持达人设计网

0

主题

485

帖子

2625

积分

8级会员

Rank: 8Rank: 8

积分
2625
谢2018 发表于 2025-6-18 22:51:25 | 显示全部楼层
支持达人室内设计网

0

主题

251

帖子

761

积分

5级会员

Rank: 5Rank: 5

积分
761
知非 发表于 2025-6-20 09:06:27 | 显示全部楼层
支持达人室内设计网

0

主题

810

帖子

2093

积分

8级会员

Rank: 8Rank: 8

积分
2093
小橙Ccc 发表于 2025-6-20 20:42:41 | 显示全部楼层
支持达人设计网

0

主题

251

帖子

761

积分

5级会员

Rank: 5Rank: 5

积分
761
知非 发表于 2025-6-22 12:04:47 | 显示全部楼层
支持达人室内设计网

2

主题

825

帖子

2121

积分

8级会员

Rank: 8Rank: 8

积分
2121
尘心1 发表于 2025-7-4 10:21:07 | 显示全部楼层
支持达人设计网

0

主题

810

帖子

2093

积分

8级会员

Rank: 8Rank: 8

积分
2093
小橙Ccc 发表于 2025-7-5 14:52:38 | 显示全部楼层
支持达人设计网

0

主题

178

帖子

2098

积分

8级会员

Rank: 8Rank: 8

积分
2098
los1120 发表于 2025-7-17 13:43:02 | 显示全部楼层
支持达人室内设计网

3

主题

74

帖子

1406

积分

7级会员

Rank: 7Rank: 7Rank: 7

积分
1406
铁打的阿新 发表于 2025-8-7 08:55:17 | 显示全部楼层
支持达人室内设计网,加油
您需要登录后才可以回帖 登录 | 注册

本版积分规则

关闭

站长推荐上一条 /1 下一条

收藏帖子 返回列表

QQ|Archiver|手机版|小黑屋|达人室内设计网 ( 粤ICP备12090048号-1 公安备案 )

GMT+8, 2025-10-30 21:44 , Processed in 0.152970 second(s), 45 queries .

Powered by Wonadea

返回顶部