汇集名师与新作

注册
钱波设计--热爱生活的帅哥,让105平的市中心公寓多变时尚
达人设计  / 发表于 2019-2-22 10:12:46 |设计大本营[开放]  / 家装设计

达人设计

网站总编

私信回帖
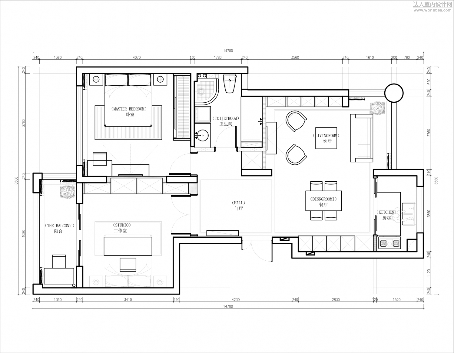
原始平面图.jpg

站在公寓里,美丽的光线充盈着整个公寓,满眼绿色植物与清新的花朵都在展示着生命的美好。听花开的声音、看露水的凝结,感受生命的美好。

平面布置图.jpg

当首席设计师钱波在着手这套公寓装修的时候,定的基本原则是希望它能够呈现出现代、简约和干净的样貌,不要太复杂。

001.jpg

虽然公寓面积不大,只有105平,但是因为是边户,大量的落地玻璃能够引入充足的自然光线,所以这个家总是窗明几净的通透感。

004.jpg

不管是卧室、厨房、书房还是客餐厅都保留了足够大的窗户,可以引入户外风光,累了,站在窗边,看看户外风景,即是灵感,也是工作的调剂。NATUZZI ITALIA 蓝色调的沙发,也成为整个空间的亮点。

006.jpg

光线是一个房子最重要的部分,因为它决定这你的格局。而家对于我们来说一定要温馨自由,这样才能让我们在繁忙的工作之余,忘记所有的烦恼,无拘无束,轻装前行。

002.jpg

005.jpg

003.jpg

刚进入这个家的时候,我们会被冷静的色调所以吸引,有点硬朗的感觉。但是增加了一些原木色的调剂和小饰品的点缀。让硬朗中增添了些许温暖,让人深感舒适。

007.jpg

黑色的墙壁和深蓝的窗帘,营造出一室好眠。白色的纱帘让阳光倾泻进来,也是文艺得不行。床头的小植物和书桌的满天星,相呼应的同时,为空间加了一丝纯色之外的色彩。

009.jpg

喜欢黑白灰色调,喜欢那种丰富的层次里有说不出的神秘感。

008.jpg

010.jpg

北面的小房间加上北阳台改为客厅。因为北阳台原本两面都是落地窗,加上跟餐厅相连,所以调整后不但不感觉空间小,反而觉得空间更加明亮、通透。南面原本是客厅的地方调整为书房。

011.jpg

作工精细的大理石台面与精巧别致的镜面设计,从细节讲究风格设计的完整度,营造出了简奢之感,浴缸和壁龛的设计,最大限度地利用了空间。

012.jpg
微信公众号➤达人室内设计网,小编微信号➤wonadea2019

0

主题

244

帖子

2742

积分

8级会员

Rank: 8Rank: 8

积分
2742
chenzhiping1992 发表于 2019-2-22 16:16:56 | 显示全部楼层
营造出了简奢之感,浴缸和壁龛的设计,最大限度地利用了空间。
您需要登录后才可以回帖 登录 | 注册

本版积分规则

关闭

站长推荐上一条 /1 下一条

收藏帖子 返回列表

QQ|Archiver|手机版|小黑屋|达人室内设计网 ( 粤ICP备12090048号-1 公安备案 )

GMT+8, 2025-10-15 19:43 , Processed in 0.144527 second(s), 37 queries .

Powered by Wonadea

返回顶部