汇集名师与新作

注册
12下一页
72㎡两居室 | 书与音乐,你与生活
懒猫设计  / 发表于 2019-4-4 20:00:46 |设计大本营  / 家装设计

懒猫设计

实力派会员

私信回帖

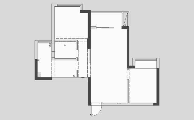
南哥家是我们这个小区设计的第三套房子,别问我为啥前两套还没有发出来 ┑( ̄  ̄)┍(另外两位朋友交房较晚,现在也基本完成),初见南哥和爽姐就发现这是一个爱书的家庭,希望可以在家冥想、一家三口工作学习两不误,还有女儿喜欢的竖琴,当然也要照顾到爽姐希望家里温暖放松的心情~



▲厨房呢一定要大,这可是爽姐的战场,我们把卫生间的洗手台独立出来,厨房的空间延续到原本比较鸡肋的生活阳台,这样厨房就比原来大了一倍的面积,走道的位置又可以设计一组吧台,主卧的衣柜也可以变成现在的3.2米,榨干最后1㎡并使动线更加流畅。


Living Room
客厅
________

▲客厅为无主灯设计,投影仪代替了不常使用的电视机,整面的收纳柜可以覆盖家庭的日常收纳。沙发背景墙的珊瑚粉色带着满满的活力气息,不粘腻,不惹眼,却能通过色彩和材质的搭配打造独一无二的感觉。

▲挂画正是女儿最爱的乐谱

▲公共区域尽量开阔,通透的纱帘、多重照明、墙面的局部突出都是可以让空间看起来比较大的知识点。

▲在外可能西装革履,回到家里就像脱掉铠甲,和自己爱的事物和家人放松的相处,正如猫的状态慵懒随性。

▲对于这个家庭而言读书是和家人一起的美好时刻~





Restaurant
餐厅
________

▲卡座简直是小户型的福星,就像去餐厅吃饭你是不是最喜欢选靠墙又临窗的位置?宽敞又安心,还能增大收纳。


▲敲黑板再强调一下:餐厅的灯吊的低一些食物看起来才会比较有食欲。




Kitchen
厨房
________

▲听说有人不建议家里放置吧台,哈哈别人说的不算。女儿要写作业、南哥和爽姐要偶尔在家临时办公,又不想互相打扰,吧台可以充当临时电脑桌、临时工作台、水果零食台同时又能分担厨房一部分的功能。

▲厨房门设计成三折的推拉门,油烟不大的时候可以隐藏在冰箱侧面(其实大部分是打开的),厨房的空间更加的通透。




Master Bedroom
主卧
________

▲主卧的粉要温和静谧,灰色基调点缀小面积粉,舒适感更强。

▲壁灯一样的书灯让主卧也能舒服的读书了。

▲房间太小了就不指望衣帽间了,只移动了门的位置就让衣柜大了一倍

▲清晨第一缕阳光溜进室内,睁开双眼有向日葵和你一起开启微笑的一天。


Girls 'room
女孩房
________

▲果然每个小女孩心里都住了一个公主,粉色当选成女儿房间的主色担当。其他的部分使用原木和淡绿色来达到平衡的效果。书桌旁是放置竖琴的地方。




Bathroom
卫生间
________

▲早上从床上醒来很想上厕所,奔到卫生间却发现家人在里面洗漱,着急呀;或者洗完澡想照镜子却发现镜子上都是雾??所以把洗手台独立出来,使用智能防雾镜是解决问题比较好的方式。



项目名称|前海东岸
项目面积|72平方米
设计公司|懒猫创意空间设计有限公司
设计总监|懒猫
硬装设计|紫琦
软装设计|卫衣
完成时间|2018.11
摄      影|大冯、豌豆



本帖子中包含更多资源

您需要 登录 才可以下载或查看,没有帐号?注册

x

0

主题

155

帖子

3794

积分

8级会员

Rank: 8Rank: 8

积分
3794
一个疯子 发表于 2019-4-5 09:10:08 | 显示全部楼层
喜欢这个味

0

主题

314

帖子

3586

积分

8级会员

Rank: 8Rank: 8

积分
3586

Medal No.1优秀达人Medal No.2活力达人Medal No.3忠实达人Medal No.4先锋达人Medal No.5发烧达人Medal No.6天使达人Medal No.7达人代言人Medal No.8达人推广大使

gaohao1993 发表于 2019-4-6 09:28:21 | 显示全部楼层


支持达人室内设计网

0

主题

81

帖子

1838

积分

7级会员

Rank: 7Rank: 7Rank: 7

积分
1838
feeljiong 发表于 2019-4-10 16:03:12 | 显示全部楼层

谢谢分享

0

主题

19

帖子

95

积分

1级会员

设计师-钟许东

Rank: 1

积分
95
Zxd1998 发表于 2019-10-27 09:45:15 | 显示全部楼层
支持支持啊

0

主题

191

帖子

2654

积分

8级会员

建筑室内设计师

Rank: 8Rank: 8

积分
2654
845418706 发表于 2019-10-27 14:36:07 | 显示全部楼层
支持达人室内设计网

0

主题

191

帖子

2654

积分

8级会员

建筑室内设计师

Rank: 8Rank: 8

积分
2654
845418706 发表于 2019-10-27 14:36:21 | 显示全部楼层
支持达人室内设计网

0

主题

170

帖子

3342

积分

8级会员

Rank: 8Rank: 8

积分
3342

Medal No.2活力达人

YI-YI 发表于 2019-10-27 19:41:30 | 显示全部楼层
温馨和谐,美观漂亮

0

主题

170

帖子

3342

积分

8级会员

Rank: 8Rank: 8

积分
3342

Medal No.2活力达人

YI-YI 发表于 2019-10-27 19:41:47 | 显示全部楼层
温馨和谐,美观漂亮,既实用又好看

0

主题

15

帖子

821

积分

6级会员

Rank: 6Rank: 6

积分
821
半缕烟沙 发表于 2019-11-13 10:35:32 | 显示全部楼层
支持达人室内设计网
您需要登录后才可以回帖 登录 | 注册

本版积分规则

关闭

站长推荐上一条 /1 下一条

收藏帖子 返回列表

QQ|Archiver|手机版|小黑屋|达人室内设计网 ( 粤ICP备12090048号-1 公安备案 )

GMT+8, 2025-11-5 00:19 , Processed in 0.153427 second(s), 45 queries .

Powered by Wonadea

返回顶部